top of page


PROJETO ARQUITETÔNICO
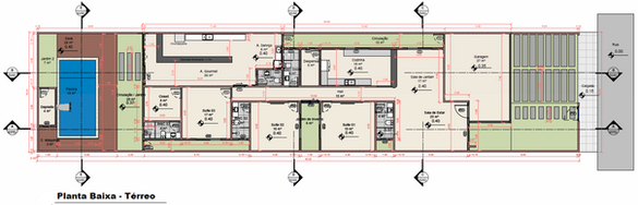
Conjunto de desenhos técnicos e especificações que detalham a concepção e construção de um edifício. O projeto inclui a planta baixa, que mostra o layout do edifício, bem como elevações, cortes e detalhes que explicam como os componentes individuais do edifício se encaixam. Também pode incluir desenhos de paisagismo e especificações para elementos como portas, janelas, iluminação, acabamentos e cores.
O objetivo do projeto arquitetônico é criar um edifício que seja funcional, esteticamente agradável, seguro e adequado ao seu propósito. Ele serve como uma base para a construção do edifício e deve ser detalhado o suficiente para que os construtores possam seguir as especificações com precisão.
bottom of page























